Nueva escuelina en San Jorge de Heres
El Ayuntamiento de Gozón y el Principado invertirán 363.000 euros en la unidad de primer ciclo de Educación Infantil, ubicada en las antiguas casas de los maestros, con el nombre de "Les Curuxines"

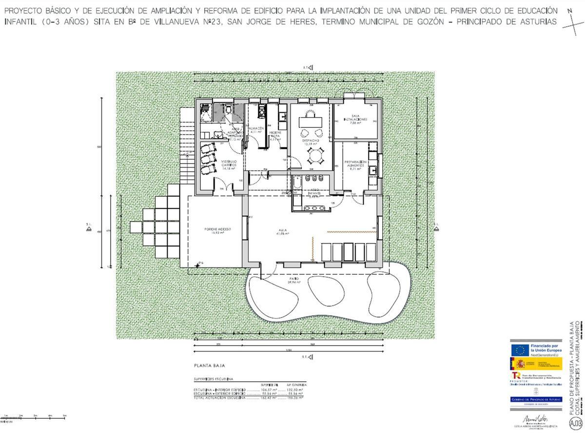
Antiguas casas de los maestros en San Jorge de Heres. Abajo, plano del nuevo centro. | Cedidas a LNE
R. S.
La próxima semana darán comienzo las obras para la transformación de las antiguas casas de los maestros en San Jorge de Heres en una "Escuelina" de 0-3, para la implantación de una unidad de primer ciclo de educación infantil.

Jorge Suárez, alcalde de Gozón. | LNE
Los trabajos están cofinanciados por el Principado de Asturias y el Ayuntamiento de Gozón, dividiendo la obra en dos actuaciones:
- A cargo del Principado: Reforma interior de la planta baja del edificio para uso docente, con demolición previa de sus interiores y reconstrucción del hueco de escaleras mediante forjado. Ampliación al sur de las instalaciones con formación de un nuevo espacio de nueva planta para uso docente y formación de porche de acceso cubierto. Formación de patio de juegos de 40 m2 aproximadamente.
- A cargo del Ayuntamiento de Gozón: Rehabilitación de la envolvente actual de todo el edificio y de la cubierta con materiales que garanticen una adecuada eficiencia energética. Nueva escalera de acceso a la planta primera por el exterior. Adecuación de los espacios interiores de la planta primera, incluyendo la renovación de carpinterías y nuevas instalaciones.

Nueva escuelina en San Jorge de Heres
Ambas han sido adjudicadas, tras los correspondientes procesos de licitación, a la empresa Francisco PENACEC, S.L.U. La obra a cargo del Principado ha sido adjudicada en la cantidad de 240.789,46 euros, mientras que la parte financiada por el Ayuntamiento de Gozón en 122.485,66 euros, lo que suma un total de 363.275,12 euros.
Con este nuevo centro, el municipio de Gozón, podrá ofertar unas 100 plazas en este ciclo educativo, teniendo en cuenta las unidades existentes ya en Luanco. Para el gobierno municipal, supone una apuesta por consolidar los centros educativos en la zona rural, teniendo en cuenta que en San Jorge, ya existe una unidad del CRA. La nueva escuelina tendrá el nombre de "Les Curuxines".
- Mañana se esperan colas kilométricas en Lidl para conseguir el juego de cuchillos de acero inoxidable más barato del mercado: fácil manejo y afilado duradero
- Mañana se esperan colas kilométricas en Lidl para hacerse con el potente microondas que es el más barato del mercado: de color plateado por solo 39,99 euros
- La DGT confirma el cambio de matrícula a partir de junio de 2026: la novedad en las letras que vas a ver a partir de ahora en los coches
- Mañana se esperan colas kilométricas en Lidl para hacerse con el set de cuencos de acero inoxidable más barato del mercado: disponible por menos de 5 euros
- Tráfico endurece la ITV: vehículos con más de 10 años deberán pasar ahora la inspección semestralmente
- Mañana se esperan colas kilométricas en Action para conseguir el organizador de maquillaje XL más barato del mercado: disponible por menos de 10 euros
- Mañana se esperan colas kilométricas en Lidl para hacerse con la alfombra antideslizante más barata del mercado: disponible por menos de 10 euros
- Mañana se esperan colas kilométricas en Lidl para conseguir el toldo de terraza que ofrece protección solar por menos de 15 euros: se pone en cualquier rincón